Bufor 500L Kołton | Zbiornik Akumulacji Ciepła Do Kotłów Na Pellet i Pomp
Zapytaj o produkt
Administratorem danych osobowych jest Drivego Sebastian Petrykowski. Przetwarzamy je w celu przesłania odpowiedzi na zapytanie. Więcej informacji dotyczących przetwarzania danych osobowych znajduje się w polityce prywatności.
Instalacja, montaż oraz konfiguracja urządzenia
Zapytaj o wycenę >
Opis
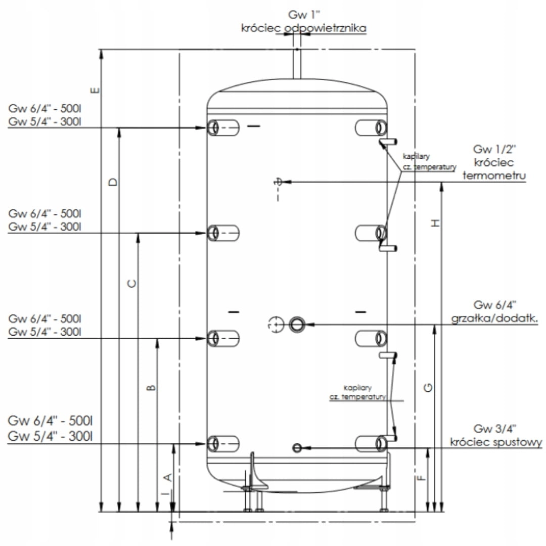
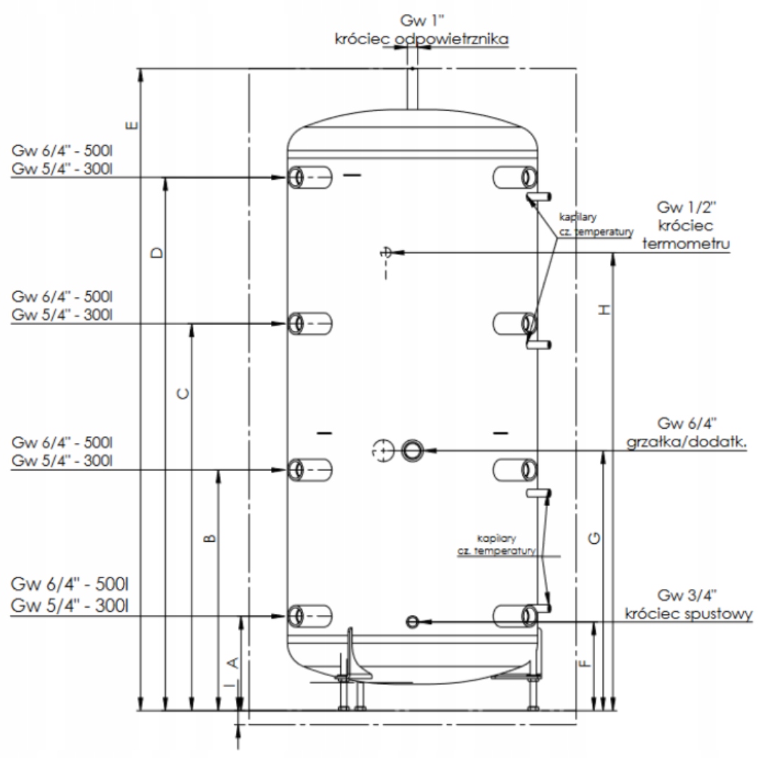
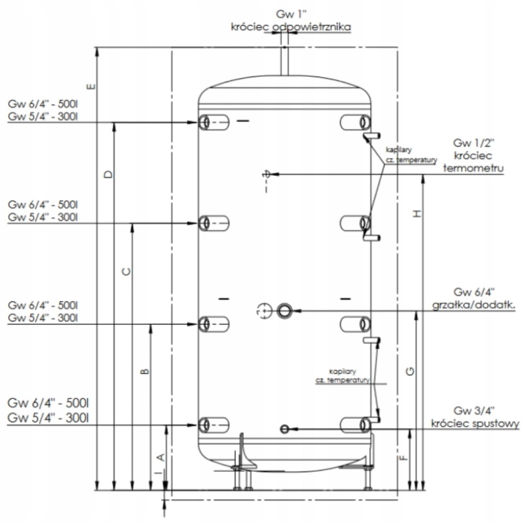
Bufor Zbiornik Akumulacyjny 500L
do pomp ciepła, kotłów na pellet, drewno
polskiego producenta KOŁTON

Firma KOŁTON oferuje klientom najwyższej jakości zbiorniki serii B służące do akumulacji ciepłej wody centralnego ogrzewania.
Zbiorniki serii B zostały stworzone do współpracy z różnymi źródłami ciepła, pompami ciepła, kotłami pelletowymi, gazowymi, grzałką elektryczną itp. Są dedykowane do pomp ciepła KOŁTON oraz systemów mieszanych zawierających więcej niż jedno źródło ciepła. Nadają się do rozbudowanych i skomplikowanych instalacji, gdzie oprócz akumulacji ciepła spełniają również rolę sprzęgła hydraulicznego. Wyróżniają się izolacją termiczną o bardzo dobrych parametrach, dwoma króćcami na grzałkę elektryczną dającymi możliwość montażu od przodu lub od tyłu zbiornika, kierownicami zapewniającymi warstwowanie ciepła w zbiorniku i fabrycznie wbudowanym rozwiązaniem umożliwiającym podłączenie do 12 czujników pomiarowych na 4 różnych wysokościach zbiornika.

Zbiorniki serii B magazynują ciepło w wodzie krążącej w układzie centralnego ogrzewania. Woda podgrzewana przez urządzenie grzewcze jest gromadzona w zasobniku w celu jej dalszego przesyłu do odbiorników ciepła (ogrzewanie podłogowe, grzejniki konwekcyjne, klimakonwektory itp.).
Innowacyjnym rozwiązaniem w zbiornikach B i BW jest zastosowanie specjalnie zaprojektowanych kierownic strumienia wody grzewczej. Kierownice te wprawiają wodę grzewczą w ruch wirowy od góry zbiornika minimalizując pionowy ruch wody w zbiorniku. Rozwiązanie takie zapewnia jak najlepsze uwarstwienie (stratyfikację) temperatury wody w zbiorniku od góry do dołu. Rozwiązanie to minimalizuje mieszanie się wody w zbiorniku co przekłada się pozytywnie na sprawność pomp ciepła, ilość cykli nagrzewania zbiornika pompą ciepła i zapewnia maksymalną wydajność.
Bufor z kotłem na pellet, drewno
W przypadku pracy ze źródłem ciepła na paliwa stałe, rolą zbiornika buforowego jest gromadzenie nadmiaru ciepła, w celu zapewnienia wysokiej sprawności urządzenia grzewczego, minimalizacji cykli pracy kotła. Zbiornik pełni rolę sprzęgła hydraulicznego.
Bufor z pompą ciepła
W przypadku pracy zbiornika w układzie z pompą ciepła podstawową rolą zbiornika jest zapewnienie minimalnego czasu pracy sprężarki w celu zminimalizowania awarii pompy ciepła. Zbiornik pełni rolę bufora a także zapewnia energię cieplną, która jest potrzebna do poprawnego przeprowadzenia procesu odszraniania parownika pompy ciepła, bez udziału grzałki elektrycznej. Bufor ciepła zapewnia stabilizacje temperatury wody wyjściowej na instalacje w przypadku przełączenia się pompy ciepła na cykl podgrzewania ciepłej wody użytkowej. W okresie letnim może być magazynem chłodu.

